• 首页
  • 写字楼
  • 出租
  • 出售
  • 资讯
  • 联合办公
  • 大业主直租

登录

注册

  • 会员中心
  • 注销
  • 同楼出租
  • 同商圈出租
  • 同区域出租
  • 同楼出售
高新万达旁 开发商直租办公 央企自持 保利物业

中国人寿壹中心

面积:204m²

单价:¥100元/㎡/月

大业主2020-03-04

¥20400元/月

科技八路地铁楼 现房甲级写字楼出租

中国人寿·壹中心

面积:459m²

单价:¥110元/月

大业主2019-03-08

¥110元/月

高新万达对面 中国人寿壹中心甲级办公

中国人寿·壹中心

面积:365m²

单价:¥110元/月

大业主2019-03-08

¥110元/月

中国人寿甲级精装修办公室出租

中国人寿·壹中心

面积:204m²

单价:¥110元/月

大业主2019-03-08

¥110元/月

唐延路中国人寿自持 可自由分割 高新万达广场对面

中国人寿·壹中心

面积:117m²

单价:¥110元/㎡/月

大业主2019-03-08

¥12870元/月

  • 共 1 页/ 6条记录
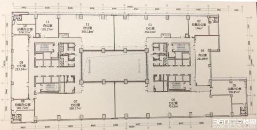
  • 中国人寿壹中心3500㎡整层-自由分割-精装修

    面积

    3500

    单价

    ¥110元/m²/月

    总价

    ¥385000元/月

    所在楼层

    13层(总23层)

    所属区域

    高新

    物业费

    ¥7.5元/m²/月

    物业类型

    写字楼

    装修程度

    精致装修

    业主类型

    大业主
    招商部 在线预约
    (联系我时,请说是在有租网上看到的,谢谢!)

    个人

    楼盘参数

    更多>>

    物业类别

    写字楼

    层数

    23层

    业主类型

    大业主

    物管公司

    保利物业

    物业费

    7.5元/m²/月

    空调

    TRANE中央空调

    层高

    4.2m 净层高:2.9m

    电梯

    客梯:12部 货梯:2部

    车位数量

    696

    入住时间

    2019-03-01

    交通地图